产品PG电子
PRODUCT

电 话:400-800-9090
手 机:13716786200
联系人:李经理
E_mail:965545620@qq.com
地 址:北京市怀柔区桥梓镇兴桥大街1号南楼203室
和光瑞府售楼处-2024和光瑞府发布-顺义最新房价详情
和光瑞府房价特价信息丨详细解答丨优惠政策丨在售户型图丨项目介绍丨在售房源丨周边配套丨VR看房丨楼盘图丨沙盘图丨位置图丨配套图丨售楼处地址丨足不出户丨销售1V1讲解
项目的地段相当好,地铁15号线+祥云小镇+新国展+九年一贯学校的配置,而且所在的板块,这两年又有了PG电子游戏 PG电子官网非常大的变化,惊喜连连。高颜值实景+神户型洋房,户型还是最火的134㎡四居爆款,项目就是和光瑞府。

项目售楼处电话:【官网】位于中央别墅区C位,北京著名的低密别墅+洋房板块,富人区的居住氛围,很有国际范儿。东侧约1300米就是15号线花梨坎站。从花梨坎出发,4站PG电子 PG平台阿里新总部、5站到望京,终点直达清北。还可换乘14 、13、5号线前往东直门、国贸。

项目隔壁就是祥云小镇,近20万㎡的开放街区,在中央别墅区的地位,相当于蓝港之于朝阳公园。

祥云小镇+地铁+周边众多大牌国际学校的配置,配套方面已经打下了很好的底子,而且今年还有惊喜,首先是南侧的新国展二期。如今已经全面封顶,进入室内装修阶段,将如期在今年建成。

建成后拥有20万平室内展览面积,将是北京最大、功能最完善、技术最先进的展馆。加上一期的10万平,以及5万平会议中心和星级酒店。总规模在国内坐二望一。

建成后每年总产值将会有1000多个小目标,惠及整个板块,这就是产业核心的魅力。其次首都机场-新国展捷运线月开始环评,快的话今年就将动工。距离项目也就2/300米的距离。

最后是京密快速路,今年也迎来两个关键节点,首先1期将于今年通车,其次在今年的政府报告中,也官宣了2期将于今年开工。

不得不佩服后沙峪板块规划的兑现速度。未来板块内还有3个配套大家可以期待下。首先是新国展三期,二期建成后,三期将会成为重点。

三期将会围绕中央绿轴,打造一条全新高端步行商业街区。还会引入如会展服务、文化创意等配套产业。整个街区就在和光瑞府南侧。

板块内还将有一所9年一贯制学校+幼儿园,西侧还将打造一条公园轴。(入学以当地教育部门规定为准)

板块以祥云小镇+地铁为底,加入产业核心+捷运线+高架快速路,未来还有学校+产业延伸+绿芯。配套全面且宜居,品质还很高,甚至可以说奢侈。
接下来说说项目,和光瑞府全部是7-15层的洋房+小高层,即将下证的现房是西区的16#,位于小区中心位置,南侧园林景观,北侧也无遮挡。


上图是中央会客区园林,下图是儿童游乐区,看得出来,开发商想打造一种回家即度假的感觉。

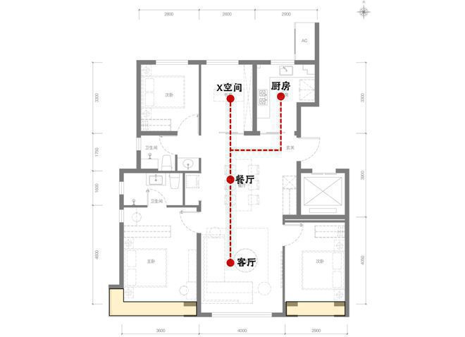
压轴的这栋楼王,户型就一种。约134㎡四居,是这两年爆火的LDK+X格局,非常多变。可以是一间独立卧室,可以是客厅拓展,还可以是兴趣空间。

客厅+双卧朝南,也就是俗称的南向三面宽,总面宽达到了约10.5米,客厅采用落地窗,采光与视野都很不错。

南向双卧赠送飘窗,主卧拥有270°转角大飘窗,主卧套间设计,拥有独立卫浴。

餐厅两侧拥有充足的储物空间。入户处有设置有独立玄关。从图上也可以看出,项目的窗墙比真的高。

这栋楼预计已于3月取证,总共就90套,除这个户型外,还有10套底层152㎡户PG电子 PG平台型,卖完就清盘了,和光瑞府也是新国展板块唯一在售的项目,成熟板块现房优点很明显,即买即住不用等,配套也不用等。

和光瑞府房价特价信息丨详细解答丨优惠政策丨在售户型图丨项目介绍丨在售房源丨周边配套丨VR看房丨楼盘图丨沙盘图丨位置图丨配套图丨售楼处地址丨足不出户丨销售1V1讲解
特别声明:以上内容(如有图片或视频亦包括在内)为自媒体平台“网易号”用户上传并发布,本平台仅提供信息存储服务。
中国女排3-0法国女排 小组赛两连胜提前出线自接力铜牌 澳大利亚破奥运纪录夺PG电子游戏 PG电子官网金
中国女排3-0法国女排 小组赛两连胜提前出线自接力铜牌 澳大利亚破奥运纪录夺金
造车新势力7月销量:理想破5万创月交付量新高,蔚来连续3个月交付超2万
N 女儿竟然被我们村的村长看中去当花童,村长还花了600多给女儿定制了一套新疆舞蹈服,没想到穿上把我...
关注丨痛心!年仅27岁中国男子泰国普吉岛游泳失踪身亡,中国驻泰领馆紧急提醒游客
张凌赫×贺聪,王安宇×春夏......品牌方怎么比偶像剧导演还会选人!
Copyright © 2016-2024 PG模拟器建筑装饰有限公司 版权所有
电 话:400-800-9090 手 机:13716786200 传 真:010-61702839 E-mail:965545620@qq.com
地 址:北京市怀柔区桥梓镇兴桥大街1号南楼203室
扫码关注我们