产品PG电子
PRODUCT

电 话:400-800-9090
手 机:13716786200
联系人:李经理
E_mail:965545620@qq.com
地 址:北京市怀柔区桥梓镇兴桥大街1号南楼203室
单身小姐姐的32㎡公寓室内打造7大功能区精致大气令人难忘
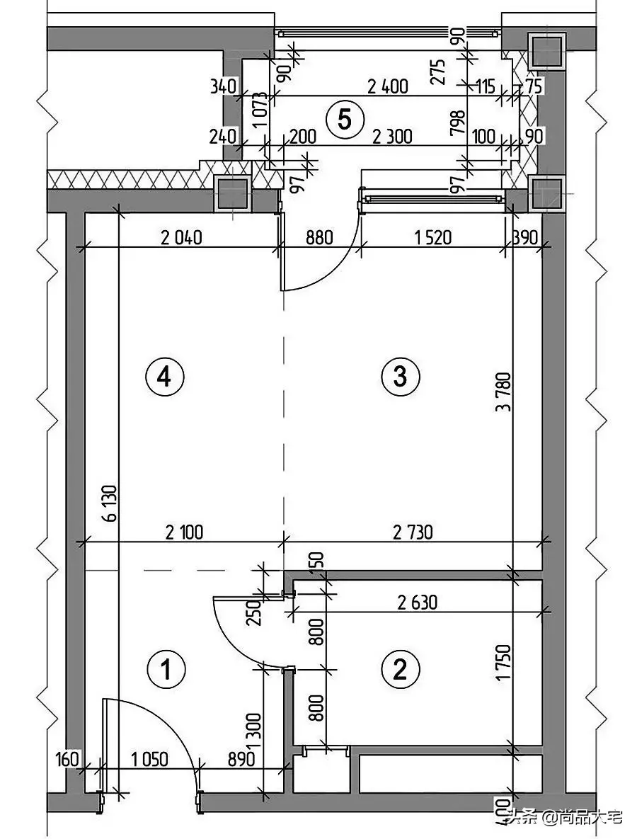
本期文章给大家分享一套套内面积32㎡的的装修案例,业主是一位单身女士。设计师在这个仅有32平米的空间中,打造出了7大功能区,并且通过软装搭配,营造出了一个简洁、时尚、明亮又令人难忘的家居空间。

原始户型中,开发商隔出了卫生间和阳台,室内的其他空间都是开放式设计,这对设计师后期的工作提供了很大的便利。业主这边希望室内能有一间独立的卧室、功能齐全的厨房餐厅、干湿分离且能摆放洗衣机的卫生间、客厅以及办公区。

1.入户玄关划分为两个区域,“脏”区用于换鞋以及安装梳妆台,“净”区通往室内其他空间,通过不同材质的地砖来区分空间。
2.卫生间内合理利用空间,干湿分离,还隔出了一个摆放洗衣机和烘干机的区域。
3.隔出了一间独立的卧室,卧室与过道之间的隔墙设计成S型,过道一侧的凹位设计小衣柜,用来收纳外套、包包等物品,卧室内的凹位设计大衣柜,收纳家居日常衣物。
5.把室内阳台打通,让空间更加宽敞明亮,并在室内剩余空间中规划出了客厅、餐厅书房以及一个小休闲区。

一进门,玄关空间就给人一种惊艳的感觉,胭脂红,在一个红色的基调里,加入了大量的高级灰粉色,还有紫红色的光泽感,既没有大红色给人的视觉压迫感,又能让空间显得温馨又浪漫。再搭配黑色、白色、绿色点缀,很容易塑造出高贵范儿,精致大气,非常漂亮。

入户门右侧设计了一个带抽屉柜的悬空梳妆台,带黑色边框的圆角矩形镜子搭配时尚的吊灯,给人一种精致又时尚的感觉。绿色的圆形梳妆凳也可以作为换鞋凳使用,方便进出门坐着换鞋。在红色和白色交织的空间中,点缀一抹绿色,给人一种清新自然的感觉。

入户门左侧对面的镜面后面是一组通顶的鞋柜,用来收纳家里的家居鞋子。玄关区域用不同颜色和材质的地砖划分出了“脏区”和“净区”,“脏区”用于换鞋,把入户的灰尘留在这个区域,“净区”则通往室内的其他空间。

在厨房的对面利用卧室隔墙留出的凹位设计了一组小衣柜,用来收纳外套、包包、围巾等进出门时需要更换摆放的物品。


卫生间内安装了定制的浴室柜、淋浴房以及马桶,让卫生间实现干湿分离的同时,又不会显得压抑,使用起来也非常方便。壁挂式马桶的上方还设计了一个隐藏式的柜子,热水器安装在柜子中。

卫生间内的配色沿用了入户玄关的配色,给人一种时尚又温馨的感觉。浴室柜右侧隔出了一个单独的区域,用来摆放洗衣机和烘干机,衣服洗完直接烘干,避免了晾晒的烦恼。

用带黑色边框的透明玻璃隔出的淋浴间内,通体白色的小方砖让空间显得更大更明亮,搭配黑色的花洒,简约又大气。淋浴间内还设计了壁龛,用来收纳卫浴用品,非常实用。

厨房靠墙一字型布局,配备了洗碗机、烤箱、炉灶、抽油烟机、大型内置冰箱微波炉,面积虽然不大,但是功能齐全,可以满足业主在家做饭的需求。厨房采用黑色搭配原木色的设计,精致时PG电子 PG平台尚又温馨。

餐厅规划到了靠近厨房的小空间中,一个两人位的小圆桌,满足业主在家用餐的需求。餐桌后方靠墙摆放了电视和电视柜,无论是就餐时还是在客厅沙发上看电视都相当的方便。


在原阳台的左侧靠墙设计了一间小书房,摆放了一张书桌,满足业主在家办公学习时使用。书桌上方墙面还设计了搁板,用来收纳书籍、摆件,既美观又实用。

客厅摆放了一张两人位的沙发,靛青色的沙发格外吸睛,搭配一张小茶几,形成一个小而明亮的会客空间。沙发背景墙上只用了一幅装饰画和简单的黑色线条壁灯作为装饰,简约大气。沙发旁边的吊椅特意选择的透明的,通透又美观,可以作为一个小小的休闲区。

客厅与卧室之间用带黑色边框的透明玻璃做隔断,保障了卧室的采光,让卧室空间更加通透明亮。

卧室床头背景墙也刷成了胭脂红色,搭配粉色的双人床,营造出一个温馨舒适的卧室空间。卧室内设计了一组到顶的嵌入式衣柜,用来收纳家里的日常衣物。
PG电子 PG平台2021_01/28/705cd8d4-6ab5-4f97-8725-69f2266e0031.png />
床头两侧对称设计了搁板用来替代传统的床头柜,搭配上造型精致的吊灯,给人一种精致又大气的感觉,既美观又实用。
看完这篇文章,大家觉得这个案例的装修风格和布局能给你带来一些装修上的灵感吗?欢迎在评论区留下您的观点!
Copyright © 2016-2024 PG模拟器建筑装饰有限公司 版权所有
电 话:400-800-9090 手 机:13716786200 传 真:010-61702839 E-mail:965545620@qq.com
地 址:北京市怀柔区桥梓镇兴桥大街1号南楼203室
扫码关注我们