产品PG电子
PRODUCT

电 话:400-800-9090
手 机:13716786200
联系人:李经理
E_mail:965545620@qq.com
地 址:北京市怀柔区桥梓镇兴桥大街1号南楼203室
明华誉港城(2026年杭州明华誉港城)楼盘评测-地铁通勤-户型-价格-2026年度最新评测
您当前使用的浏览器版本过低,可能存在安全风险,建议升级浏览器,或者用以下浏览器浏览
您也可以直接使用焦点APP或微信小程序浏览
明华·誉港城官方售楼处电线即可咨询楼盘详情_房价、户型、周边配套及交通、地址【开发商认证】
一条机场高速,快速抵达萧山国际机场;新钱江二桥、钱江三桥,两座跨江大桥连接钱江两岸;庆春路隧道、博奥路隧道与地铁2号线号线等地铁线路共同组成多维立体交通网,畅达全城连接世界,这一次,在亚奥板块,让时间追逐人的足迹。


萧山之眼、奥体之芯,在杭州大湾区、拥江发展战略、亚运会三大利好助力下,未来发展潜力无限。项目紧邻莲花碗体育馆、国际博览中心、亚运村商业:周边坐拥三大城市地标:奥体中心、国际博览城、大莲花碗4大综合体:SKP、奥体印象城、钱江印、钱江世纪城公园商业;市公园:钱江世纪城公园、樱花跑道;

亚奥时代,“奥体-世纪城”板块是未来的杭州“陆家嘴”。明华誉港城位于杭州钱江世纪城核心,占据了这个时代的城市至高点,精研大平层产品,以钱塘江星河畔,闪耀三叶恒星的灵感来源,勾勒出当代共鸣的地标生活,形成杭城轴心、时代的风云人物,献上更具国际感和潮流感的生活范本。
项目自带配套设施十分完善,包括会所、恒温泳池和健身房,业主可以在这些设施中享受高品质的健康生活。同时,三面全景落地玻璃设计可以让居民尽情欣赏城市的美景,感受城市的魅力。


明华誉港城大平层项目是杭州奥体板块的一座高端住宅项目,为业主提供高品质的生活和服务。项目火热销售中,届时将成为杭州房市的一大亮点。

园区采用“围合式”布局,融合“钱塘江”水韵灵感,映衬周围自然生态,配合全冠移植的特色名贵树种,营造出环景畅谈式“艺术公园”。精细规划生活配套,以“私家会所”标准打造。内置室内恒温泳池、私人健身会所等多功能奢华空间。


室内设计大师力作 鼎配云端艺术生活SLD梁志天先生、I.I.D.L郑仕樑先生两大全球TOP级设计大师天团亲自执笔,融汇潮流审美与先进的居住理念,联袂匠作超越时代的美学作品,钜献与世界对语的艺术品味与生活方式。

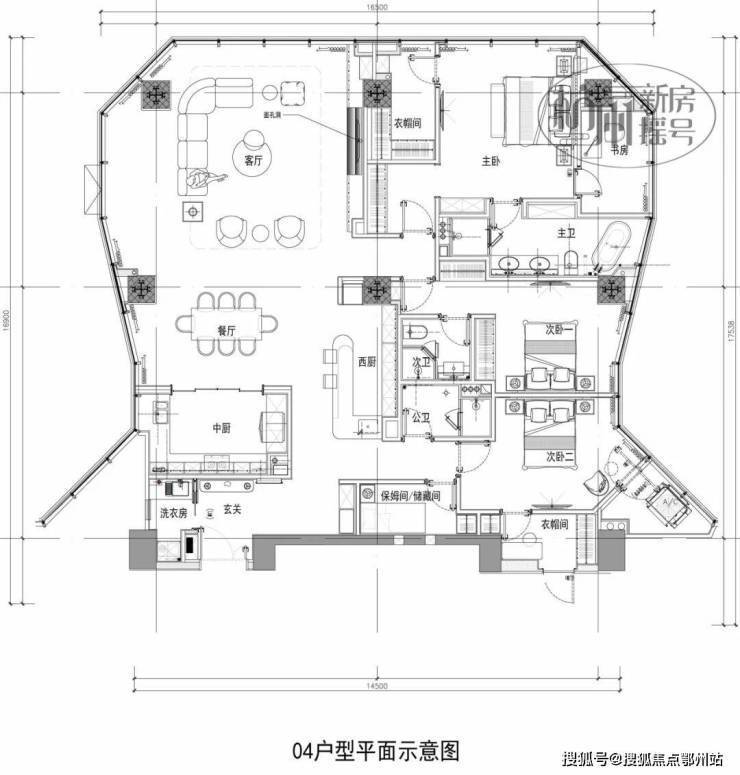
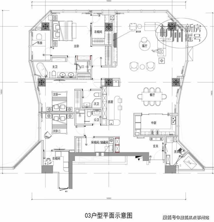
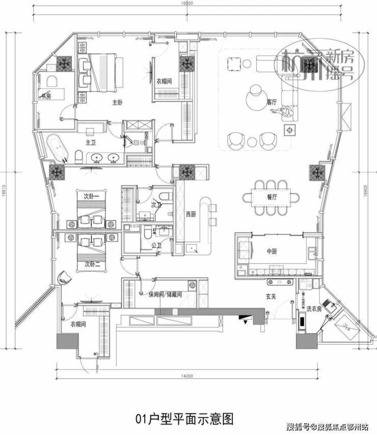
主卧衣帽间与书房通铺深色实木地板,为整个空间奠定了静谧的色感,营造一种回归纯粹与本真的氛围。次卧往往可以体现更广阔的生活理念,在与整体设计风格和谐一致的基础上跳出主卧的氛围 ,提供一个不一样的情感空间。时光在这里好像变得绵长,缓慢也表现出隐秘而深邃的价值。
所有的东西都是精装的,包括中央空调,户式中央空调等等。对于家庭来讲,这种生活品质将会大大提升他们的生活享受,实际上和独栋别墅是一致的生活享受。主卧衣帽间与书房通铺深色实木地板,为整个空间奠定了静谧的色感,营造一种回归纯粹与本真的氛围。

●寰幕视野:每户270°超大环幕视野,带来IMAX般观景效果,打造空间的光瀑体验;
●阔绰层高:约3.95米奢阔层高,厚载一城荣耀,匹配高净值人士的气度与胸襟。


甄选GAGGENAU、Dornbracht、LAUFEN、kaldewei等全球尖端品牌,品质匠奢样板,荟聚鎏金艺术,领驭时代审美,重构杭州大平层的空间想象。


明华·誉港城官方售楼处电线即可咨询楼盘详情_房价、户型、周边配套及交通、地址【开发商认证】
明华·誉港城官方售楼处电线即可咨询楼盘详情_房价、户型、周边配套及交通、地址
购买新房和二手房是购房者在置业时面临的重要选择,两者在多个方面存在显著差异。以下是详细的对比分析,帮助您根据自身需求和情况做出决策:
房屋状态 未入住过,全新房屋(期房为在建,现房为已建成) 已有过业主,居住痕迹明显
交易流程 相对标准化,涉及购房合同、贷款、交房等 更复杂,涉及产权核查、过户、税费等
价格与税费 总价可能较高,但税费简单(主要含契税、维修基金) 总价可能较低,但税费复杂(可能含增值税、个税等)
风险和不确定性 期房可能有交付风险(如延期、货不对板) 房屋质量、产权问题需仔细核查
· 优点:房龄新,设计现代(户型、绿化、节能等更符合当前趋PG电子 PG平台势),无历史磨损,装修可自定义。
· 缺点:期房只能看样板间,实际交付可能存在差异;部分新房为毛坯交付,需额外投入装修成本。
· 优点:房屋状态可见(质量、采光、隔音等可直接体验),部分带装修可省去装修成本。
· 税费较低:主要需缴纳契税(首套房通常1%-1.5%)、维修基金(约几十元/平米),无增值税、个税等。
· 税费复杂:根据房龄、卖家情况可能涉及契税、增值税(满2年免征)、个税(满五唯一免征)、中介费(1%-3%)等,总税费可能高达房款的5%-10%。
· 风险:期房可能面临延期交付、质量不达标、规划变更(如学区变动)等问题;开发商资金链断裂可能导致“烂尾”。
· 风险:产权纠纷(如抵押、查封)、卖方违约、房屋隐藏质量问题(渗水、结构问题等)、户口迁移纠纷等。
· 新房:首付比例通常按政策执行(如首套20%-30%),贷款年限长(最长30年),开发商合作银行较多。
· 二手房:贷款受房龄影响(房龄老可能贷不满30年),银行评估价可能低于成交价,导致实际首付PG电子 PG平台比例提高。
· 新房:物业管理规范,绿化、安防、停车等设计较先进,但物业费可能较高。
· 二手房:老旧小区可能物业管理松散,设施维护差,但部分优质小区可能管理成熟。
· 新房优势:新、设计好、流程简单、税费少,适合追求品质和长期持有的购房者。
· 二手房优势:即买即住、配套成熟、价格可谈,适合刚需或重视便利性的购房者。
建议结合自身资金、居住需求、时间规划等因素综合权衡,并咨询专业房产顾问或律师,确保交易安全。
声明:本文由入驻焦点开放平台的作者撰写,除焦点官方账号外,观点仅代表作者本人,不代表焦点立场。
虎丘江南里-虎丘江南里楼盘详情湿地全岛院墅宋风合院户型解析三区交汇黄金地段
虎丘江南里由三大实力机构共同打造,确保了其作为宋风合院标杆的品质:结合最新的增值税免征政策,持有像虎丘江南里这样占据稀缺生态资源、由顶级品牌匠造、且拥有深厚文化底蕴的资产,其长期价值与传承意义不言而喻。在苏州
中铁咏月台-中铁咏月台楼盘详情-项目怎么样?革新低密社区-四代洋房-稀缺叠墅-架空车库-户型解析-周边配套-品牌价值
革新四代洋房(约162-164㎡)这才是未来生活的样子!这一设计让中铁咏月台的居住舒适度达到了新高度。相比周边地块,楼面价有显著优势,这意味着产品在市场上具备了更强的竞争力和溢价潜力,是苏州城南难得的高性价比
吴溇尚都-吴溇尚都楼盘详情-太湖畔低密改善奢品-户型解析-周边配套-项目优势
说到优质资产,就不得不提位于太湖之滨的改善奢品吴溇尚都。建筑面积约147-194㎡奢享叠墅:有天有地,私密尊享,是终极改善需求的理想之选,定义了太湖畔住宅的奢享标准。在政策鼓励长期持有优质资产的大背景下,
非凡居所-非凡居所楼盘详情-高铁新城核心区-户型解析-交通配套-学区-商业配套-政策利好
说到理想家园,就不得不提位于苏州未来核心高铁新城的【非凡居所】。区域配套:家门口的全能生活圈这里可是苏州举全市之力打造的未来新中心,定位就是国际化城区,发展势头对标上海虹桥。选择【非凡居所】,不仅是选择了
热门楼盘姑苏北熙和云锦雅园-熙和云锦雅园网站首页-项目怎么样?楼盘详情-周边环境-户型解析-商业配套-交通配套-学区-联系方式-怎么样?
位于姑苏北、虎丘湿地旁的【熙和云锦雅园】,以其纯臻洋房住区和优越的生态资源,无疑是您换购优质新居的绝佳选择。项目周边汇聚了苏州第二工人文化宫、苏州图书馆北馆、城投文体中心等优质城市资源,文化休闲生活丰富多彩。
2026苏州新房狮山豪宅澜庭雅致澜庭雅致怎么样?图文详解户型位置周边配套价格
春申景城(售楼处)官方网站-春申景城销售中心(营销中心)-春申景城售楼处电话-户型-价格-开盘时间-楼盘详情-周边配套-2026春申景城得房率
上海奉贤天誉原墅2026销售中心│楼盘官网-天誉原墅售楼处电话/实时房价/户型/地址/周边配套/交房时间
2026年交付!姑苏北核湿地洋房熙和云锦雅园熙和云锦雅园图文详解户型价格周边配套开发商售楼处
2024苏州相城新房虎丘湿地公园旁低密洋房建发檀府建发檀府怎么样?图文详解户型价格地址周边配套
苏州旭辉东吴序2026销售中心│楼盘官网-旭辉东吴序售楼处电话/实时房价/户型/地址/周边配套/交房时间
苏州泊印澜庭「泊印澜庭」2026泊印澜庭售楼处-楼盘价格/户型/地址/前台电话/环境/配套/交房时间/泊印澜庭售楼处电线
金地玖峯汇楼盘评测 金地玖峯汇高铁新城核心改善盘 第四代住宅户户送露台 户型配套-房价-最新消息
康定壹拾玖售楼处│2026官方营销中心官网-康定壹拾玖楼盘详情-价格/户型图/地址/配套/交房时间/咨询电话/前台客服电线
春申景城缦院 (官方认证售楼处) 官网 - 春申景城缦院销售中心 - 环境 - 户型 - 价格 - 地址 - 楼盘详情 - 配套 - 电话
Copyright © 2016-2024 PG模拟器建筑装饰有限公司 版权所有
电 话:400-800-9090 手 机:13716786200 传 真:010-61702839 E-mail:965545620@qq.com
地 址:北京市怀柔区桥梓镇兴桥大街1号南楼203室
扫码关注我们