产品PG电子
PRODUCT

电 话:400-800-9090
手 机:13716786200
联系人:李经理
E_mail:965545620@qq.com
地 址:北京市怀柔区桥梓镇兴桥大街1号南楼203室
保利珺园售楼处-保利珺园销售中心-环境-户型-价格-地址-楼盘详情-配套-安澜上海售楼处电话-交房时间-配套-电话-交房时间
您当前使用的浏览器版本过低,可能存在安全风险,建议升级浏览器,或者用以下浏览器浏览
保利珺园官方售楼处 - 保利珺园销售中心 - 环境 - 户型 - 价格 - 地址 - 楼盘详情 - 配套 - 安澜上海售楼处电话 - 交房时间 - 配套 - 电话 - 交房时间
保利珺园官方售楼处 - 保利珺园销售中心 - 环境 - 户型 - 价格 - 地址 - 楼盘详情 - 配套 - 安澜上海售楼处电话 - 交房时间 - 配套 - 电话 - 交房时间
「保利珺园」售楼处咨询电话:本项目暂不接受临时到访,过来参观样板房请记得提前来电预约!
温馨提示:为了给您提供更高更好的接待服务质量,看房请提前致电售楼处预约!✅✅
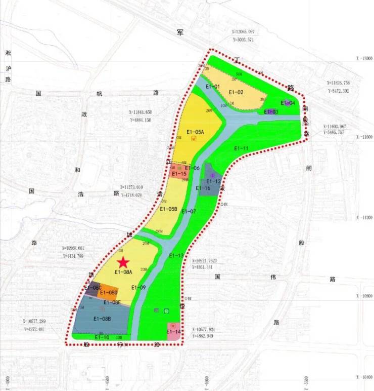
2025年9月3日,保利发展与上海地产投资有限公司联PG电子游戏 PG电子官网手,通过上海联合产权交易所完成杨浦区新江湾社区E1-08A项目及北外滩项目股权转让竞价,确定为项目的受让方。

E1-08A地块位于新江湾城北侧,直线米,预计将是洋房和联排的组合。其土地面积约5.71万㎡,建筑面积约6.28万㎡,出让总价为37亿元,折合楼板价约5.89万/㎡,住宅套数下限为455套。


项目规划了9栋6层洋房、9栋4层叠墅、18栋3层滨水合院。打造了稀缺的低密产品:建面约105-140㎡的墅质洋房、建面约165-190㎡的奢阔叠拼以及建面约200-285㎡的滨水联排。


第二大亮点:项目东北两侧被湿地包裹,形成了“双湾环抱-对望湿地-内有庄园”的生活体验。整体采取了东高西低的策略,使前排建筑不遮挡后排视野,超过半数楼栋可享受水系与公园景致。


“珺club”具有健身房、泳池、健身瑜伽、私宴厅等功能区,考虑到客户对于教育和艺术的重视,项目也在考虑增加其他更多的相关功能,大家可以期待一下!

第五大亮点:楼栋南北向间距基本都不小于遮挡建筑的高度。居住的通透性、采光度、舒适性会非常好。
建筑是goa袁源(设计中海顺昌玖里)、景观请了成都麓湖同款设计师JTL王小波
室内由亚太年度设计人物明德王大成设计、矩阵纵横设计总监郑楚生、优豪斯创始人王小峰等联手操刀。一句话:全是豪宅专业户。
新江湾城的北翼,上海9大主城副中心之一的吴淞创新城,正在经历“北转型”科创产业大升级。新江湾城的南翼,另一个主城副中心江湾五角场,作为“金色中环发展带”,串起上海北部核心商务区,正从传统都市商圈向产学研复合城区变迁。
如大弓一般伸展的杨浦区,正在推动落实“三区联动”,也就是创新空间、产业空间、生活空间融合。作为杨浦区的核心发展引擎——江湾五角场的辐射生活带,新江湾城顺其自然坐享周边产业区、校区发展所带来的溢出机遇。

2025年,新江湾城板块迎来军工路、长江西路快速化改造工程的持续推进。军工路快速路是“中环北扩”规划(军工路—长江路—真北路快速通道)重要成员。它沿着杨浦、宝山两区滨江地带行走,线公里,它是上海北部高速联通中、外环线的主要干道之一,战略地位向来很重。该路段2025年内建设完工。

它将加速新江湾城与中心城区联系,同时串起黄浦江下游多条越江通道,减轻中环北段、逸仙路高架、南北高架等快速路的拥堵压力,功能非常丰富,意义非常重大。
长江西路快速路已被列入2025重大工程预备项目,所谓预备项目,是指项目现阶段手续暂未齐全,待齐全后预备近期实施的项目。换句话说,中环向北扩展的总体目标,2025年有望全面启动。

20号线号线直接穿越新江湾城外,一条新轨交又要来了, 20号线被称为“北上海副中心联络线个站点。它不仅串联起了真如、五角场两大主城副中心,并且将桃浦智创城、大宁商圈、新江湾、曲阳(大柏树)、杨浦滨江中北段和浦东外高桥一线连接。

“夹”在中间的新江湾城,区内坐拥抖音、哔哩哔哩、叠纸、美国耐克、德国汉高等头部企业,精英人才汇聚。北部以湾谷科技园为核心,形成“2+4+N”产业矩阵——电子通信、生命健康为主导,智能科技、绿色低碳等为优势产业。新江湾城作为生态型花园国际社区,不但要接住南北两翼齐飞的泼天“城运”,顺势还要承接周边不断溢出的庞大职住需求。

新江湾区域内绿化覆盖率高达60%,已经形成 湿地-公园-绿廊 三级生态体系。占地7.35公顷的新江湾城湿地公园,是上海中心城区最大一块天然湿地,负氧离子浓度达2000个/立方厘米以上,堪称超大型城市绿肺。

新江湾区域内有复旦、同济、财大等10多所著名高校,100多家科研院所,以及复旦附中、交大附中等重点高中。早在1996,该区域第一个高科技园区“五角场高新技术产业园”正式建立,
比如建设国家创新型试点城区,将杨浦园构建为张江示范区的重要组成部分等。杨浦还打出了一个大大的标语:至2030年,形成“大学的城市、城市的大学”。保利珺园售楼处电话☎✅【售楼热线】Sales office phone number☎✅保利珺园营销中心热☎✅保利珺园售楼处地址☎✅

新江湾城街道聚焦居民、企业员工生活、工作上的需求,推行“15分钟社区生活圈”,建立

经过逾20年的建设,新江湾城已成为一个以中高端住宅为主的知识型、生态型花园社区。

自驾方面,项目经由淞沪路-黄兴路及逸仙高架路可连通内环,日常通勤动线流畅。

商业方面,板块内有悠方购物公园,可满足日常生活需求。五角场则包含万达广场、百联又一城、合生汇等一站式购物中心。

此外项目南侧直线米,上海交大附中杨浦实验学校将于2027年9月落成启用。

保利珺园售楼处电话☎✅【售楼热线】Sales office phone number☎✅保利珺园营销中心热☎✅保利珺园售楼处地址☎✅
虎丘江南里-虎丘江南里楼盘详情湿地全岛院墅宋风合院户型解析三区交汇黄金地段
虎丘江南里由三大实力机构共同打造,确保了其作为宋风合院标杆的品质:结合最新的增值税免征政策,持有像虎丘江南里这样占据稀缺生态资源、由顶级品牌匠造、且拥有深厚文化底蕴的资产,其长期价值与传承意义不言而喻。在苏州
中铁咏月台-中铁咏月台楼盘详情-项目怎么样?革新低密社区-四代洋房-稀缺叠墅-架空车库-户型解析-周边配套-品牌价值
革新四代洋房(约162-164㎡)这才是未来生活的样子!这一设计让中铁咏月台的居住舒适度达到了新高度。相比周边地块,楼面价有显著优势,这意味着产品在市场上具备了更强的竞争力和溢价潜力,是苏州城南难得的高性价比
吴溇尚都-吴溇尚都楼盘详情-太湖畔低密改善奢品-户型解析-周边配套-项目优势
说到优质资产,就不得不提位于太湖之滨的改善奢品PG电子游戏 PG电子官网吴溇尚都。建筑面积约147-194㎡奢享叠墅:有天有地,私密尊享,是终极改善需求的理想之选,定义了太湖畔住宅的奢享标准。在政策鼓励长期持有优质资产的大背景下,
非凡居所-非凡居所楼盘详情-高铁新城核心区-户型解析-交通配套-学区-商业配套-政策利好
说到理想家园,就不得不提位于苏州未来核心高铁新城的【非凡居所】。区域配套:家门口的全能生活圈这里可是苏州举全市之力打造的未来新中心,定位就是国际化城区,发展势头对标上海虹桥。选择【非凡居所】,不仅是选择了
热门楼盘姑苏北熙和云锦雅园-熙和云锦雅园网站首页-项目怎么样?楼盘详情-周边环境-户型解析-商业配套-交通配套-学区-联系方式-怎么样?
位于姑苏北、虎丘湿地旁的【熙和云锦雅园】,以其纯臻洋房住区和优越的生态资源,无疑是您换购优质新居的绝佳选择。项目周边汇聚了苏州第二工人文化宫、苏州图书馆北馆、城投文体中心等优质城市资源,文化休闲生活丰富多彩。
2026苏州新房狮山豪宅澜庭雅致澜庭雅致怎么样?图文详解户型位置周边配套价格
春申景城(售楼处)官方网站-春申景城销售中心(营销中心)-春申景城售楼处电话-户型-价格-开盘时间-楼盘详情-周边配套-2026春申景城得房率
上海奉贤天誉原墅2026销售中心│楼盘官网-天誉原墅售楼处电话/实时房价/户型/地址/周边配套/交房时间
2026年交付!姑苏北核湿地洋房熙和云锦雅园熙和云锦雅园图文详解户型价格周边配套开发商售楼处
2024苏州相城新房虎丘湿地公园旁低密洋房建发檀府建发檀府怎么样?图文详解户型价格地址周边配套
苏州旭辉东吴序2026销售中心│楼盘官网-旭辉东吴序售楼处电话/实时房价/户型/地址/周边配套/交房时间
苏州泊印澜庭「泊印澜庭」2026泊印澜庭售楼处-楼盘价格/户型/地址/前台电话/环境/配套/交房时间/泊印澜庭售楼处电线
金地玖峯汇楼盘评测 金地玖峯汇高铁新城核心改善盘 第四代住宅户户送露台 户型配套-房价-最新消息
康定壹拾玖售楼处│2026官方营销中心官网-康定壹拾玖楼盘详情-价格/户型图/地址/配套/交房时间/咨询电话/前台客服电线
春申景城缦院 (官方认证售楼处) 官网 - 春申景城缦院销售中心 - 环境 - 户型 - 价格 - 地址 - 楼盘详情 - 配套 - 电话
Copyright © 2016-2024 PG模拟器建筑装饰有限公司 版权所有
电 话:400-800-9090 手 机:13716786200 传 真:010-61702839 E-mail:965545620@qq.com
地 址:北京市怀柔区桥梓镇兴桥大街1号南楼203室
扫码关注我们